クレッセント駒沢公園パークサイド

1億3,480万円

東京都世田谷区深沢2丁目12-11

東急田園都市線「駒沢大学」駅徒歩18分

東急東横線「都立大学」駅徒歩25分

東急田園都市線「桜新町」駅徒歩25分

価格
1億3,480万円
間取り/面積
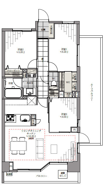
3LDK/70.35㎡
所在地
東京都世田谷区深沢2丁目12-11
築年
2000年6月(築25年)
駐車
近隣
交通

東急田園都市線駒沢大学」駅 徒歩18分

東急東横線都立大学」駅 徒歩25分

東急田園都市線桜新町」駅 徒歩25分

クレッセント駒沢公園パークサイドの基本情報

物件名
クレッセント駒沢公園パークサイド
価格
1億3,480万円
築年月
2000年6月(築25年)
総戸数
25戸
所在地
東京都世田谷区深沢2丁目12-11
交通

東急田園都市線駒沢大学」駅 徒歩18分

東急東横線都立大学」駅 徒歩25分

東急田園都市線桜新町」駅 徒歩25分

クレッセント駒沢公園パークサイドの詳細情報

設備条件
設備(その他)
    -
駐車場/月額
近隣/ 200m 詳細はお問い合わせ下さいませ。
土地権利
所有権
国土法届出
不要
用途地域
第一種中高層住居専用
戸数
25戸 / -
管理形態
管理会社に全部委託
管理員の勤務形態
巡回
管理会社
オーエムサービス
取引態様
一般媒介
引渡し
即時
備考
「クレッセント駒沢公園パークサイド」のここがイチオシ。住んでいて心地の良い中古マンションで魅力的です。当社は世田谷区にある東急田園都市線駒沢大学周辺物件を豊富に取り扱っており、お客様のご希望に適した物件情報をご提供しております。気になる物件がございましたら、お気軽にご連絡下さい。

クレッセント駒沢公園パークサイドのコメント(おすすめポイント)

綺麗に整備された中古マンションで清潔感を感じます。一生に一度の大きな買い物である不動産探しなら、当社におまかせください。お客様のご希望やニーズにマッチした物件をご紹介します。

クレッセント駒沢公園パークサイドで募集中の物件

  1. 404号室

    21.28坪 (70.35㎡)

    13,480万円(633.46万円/坪)

近隣の物件

  1. 世田谷区松原3丁目

    3LDK (85.19㎡)

    14,150万円

  2. 世田谷区桜上水4丁目

    3LDK (76.01㎡)

    13,980万円

  3. 世田谷区玉川台2丁目

    3LDK (57.58㎡)

    6,980万円

  4. 世田谷区桜新町2丁目

    2LDK (238.04㎡)

    13,480万円

クレッセント駒沢公園パークサイド

お気軽にお問い合わせください

無料お問い合わせ

株式会社ラファファ

0800-800-7890

10:00~18:00

(休:火曜日・水曜日)